产品分类

联系我们

江苏森宇流体科技有限公司 

地址:江苏省启东市汇龙镇台角村(杨沙路27号)
电话:0513-83821332
传真:0513-83821332
邮编:226200 

http://www.jssylt.com 
E-mail:sy@jssylt.com


江苏森宇

 
R1904型电气控制箱(20MPa)
一、用途
  R1904型电控箱,用于自动控制一套由U-※※AE型终端式电动润滑泵与补脂泵组成的干油润滑系统,即在DEA-2E 型电控箱的基础上,增加了补脂泵自动控制部分。能对系统中的供油点实现自动供油,供油完成后,自动停止。油箱中液位低于一定限度时,补脂泵自动启动,注满油后,自动停止。
  控制箱能发出“供油时间延长”、“油箱液位低”、“超负载运转”等故障信号。箱内设有一组外部接点,可向主机或主控室发送系统运转状况(停止、运转、故障)信号。

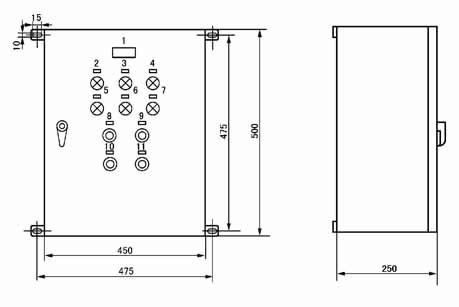
二、外形尺寸
三、标牌符号及文字
序号
符号
标牌文字
序号
符号
标牌文字
1
HL1
电源
6
HL4
油箱液位低
2
HL2
干油站工作
7
SB1
任意运转
3
HL3
加油泵工作
8
SB2
故障复位
4
HL4
供油时间延长
9
SB3
加油泵启动
5
HL5
超负载运转
10
SB4
加油泵停止
四、R1904型电气控制箱接线端子图