产品分类

联系我们

江苏森宇流体科技有限公司 

地址:江苏省启东市汇龙镇台角村(杨沙路27号)
电话:0513-83821332
传真:0513-83821332
邮编:226200 

http://www.jssylt.com 
E-mail:sy@jssylt.com


江苏森宇

 
GXYZ型B系列高(低)压稀油站
一、使用条件
与GXYZ型A系列基本一致,但工作介质粘度范围为N22~N460(相当ISO VG22~460);另外B 系列的除高压和低压的供油压力不变分别为31.5MPa和0.4MPa外,其高压和低压的流量均有较大增加,详见下面技术性能表(规格最大的高压流量为40L/min,低压流量为315L/min)。
本装置由油站、仪表盘、电控柜(可用PLC 控制)成套组成。
本产品的性能参数及尺寸应符合表和图中的规定。
 
二、型号标注方法
如采用B 系列,高压流量为20L/min;高压压力为31.5MPa,低压供油压力为0.4MPa;而低压供油量为100L/min的高(低)压稀油站,采用继电器、接触器控制的则按如下方法标注:GXYZ-B20/100
 
三、结构特点
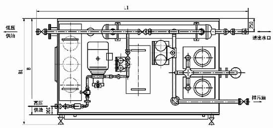
  本油站为整体式,由油箱、两台低压油泵、一台高压油泵、二台双筒网片式过滤器、回油磁网过滤装置、列管式油冷却器、各种控制阀门、管道以及电接点压力表、铂热电阻等组成。
  工作原理基本上也和A系列相同;但B系列的低压油经过过滤和冷却后外供时,一部分低压油通过旁路再经过一个双筒过滤器后才进入高压泵的吸油口,以提高高压油的清洁度等级;但应注意当低压供油实际压力较小时(例如小于0.2MPa时),由于后一过滤器同样也有压差损失(也随时间逐步增大),为保证高压油泵顺利吸入,吸入口应始终保证正压(当后过滤器切换前压差达最大时也必须满足这一要求);除  流量和A系列有很大不同外,最主要特点(结构特征)为高压泵吸口前有另一台过滤器。
  其他工作原理和操作控制可参见A系列所述。
 
GXYZ 型B 系列高(低)压稀油站技术性能
参数
型号
GXYZ-B20/100
GXYZ-B20/125
GXYZ-B20/160
GXYZ-B30/200
GXYZ-B30/250
GXYZ-B40/135



流量L/min
100
125
160
200
250
315
供油压力MPa
≤0.4
供油温度℃
40±3
电动机
型号
Y100L2-4
Y112M-4
Y132S-4
Y132M-4
功率KW
4
4
5.5
7.5
转速r/min
1450
油箱容积m3
1.6
2.0
2.2
2.8
3.3
4.2
高压系统
流量L/min
20
30 40
供油压力MPa
31.5
电动机
型号
Y160L-6
Y160L-4 Y180M-5
功率Kw
11
15 18.5
转速r/min
950
1450
过滤精度m2
0.08~0.12(低压出口)
过滤面积m2
11
20
28
冷却面积m2
9
11.25
16
20
25
30
电加热功率Kw
18
24
30
外形尺寸mm
2300 x 1540 x 1800
2750 x 1700 x 1900
3350 x 1850 x 1950
备注
实际油粘度高于320cst时,低压泵功率应提高一级
 
四、外形尺寸
GXYZ 型B 系列外形尺寸
 
型号
H
H1
H2
H3
H4
L
L1
B
B1
DN1
DN2
DN3
DN4
GXYZ-B20/100
1110
1800
940
160
400
1700
2300
1280
1540
20
320
100
G11/2
GXYZ-B20/125
1160
1800
990
160
400
1800
2300
1380
1540
20
40
100
G2
GXYZ-B20/160
1160
1900
990
160
400
1900
2750
1480
1700
20
40
125
G2
GXYZ-B30/200
1200
1900
1030
180
400
2200
2750
1530
1700
20
50
150
G2
GXYZ-B30/250
1200
1950
1030
180
450
2650
3350
1580
1850
20
65
150
G2
GXYZ-B40/315
1260
1950
1090
180
450
2800
3350
1680
1850
20
65
175
G2
 
五、原理图
 
六、仪表盘
  仿A系列(图2-1-4),二个过滤器的差压发讯器尽量就地装于过滤器上。
 
七、电控柜
  按A系列电控柜。(图2-1-3)