产品分类

联系我们

江苏森宇流体科技有限公司 

地址:江苏省启东市汇龙镇台角村(杨沙路27号)
电话:0513-83821332
传真:0513-83821332
邮编:226200 

http://www.jssylt.com 
E-mail:sy@jssylt.com


江苏森宇

 
XYHZ型稀油润滑装置(0.5MPa)
 

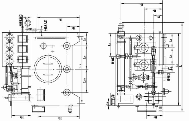
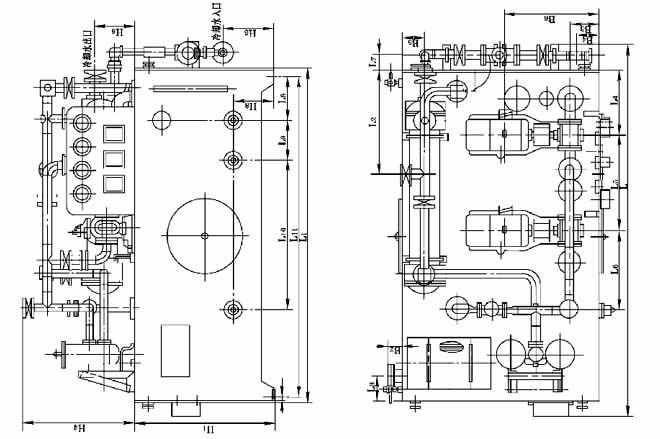
四、电控箱外形尺寸

          图5 XYHZ6.3~XYHZ200装置电控箱         图6 XYHZ250~XYHZ800装置电控箱
 

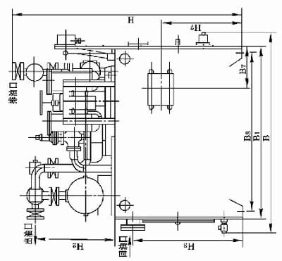
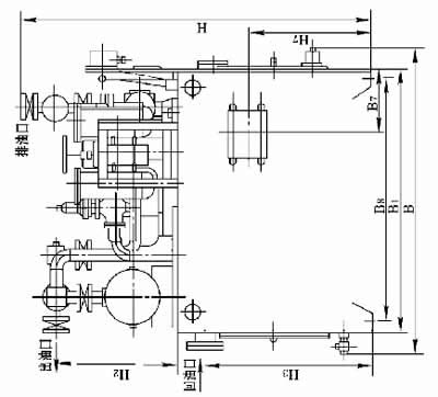
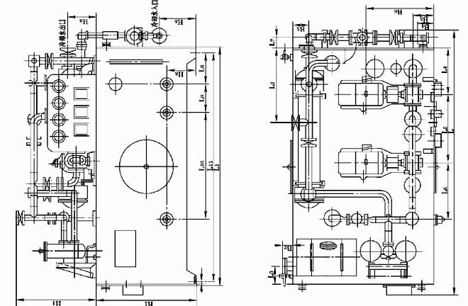
五、装置外形尺寸

  1.XYHZ6.3~XYHZ25的装置形式与尺寸见图7和表3;
  2.XYHZ40~XYHZ125的装置形式与尺寸见图8和表4;
  3.XYHZ160~XYHZ800的装置形式与尺寸见图9和表5;
  4.图7、8、9中进出口法兰尺寸见图10和表6、7;
图7 XYHZ6.3~XYHZ25装置
 
图8 XYHZ40~XYHZ125装置
 
图9 XYHZ160~XYHZ800装置