产品分类

联系我们

江苏森宇流体科技有限公司 

地址:江苏省启东市汇龙镇台角村(杨沙路27号)
电话:0513-83821332
传真:0513-83821332
邮编:226200 

http://www.jssylt.com 
E-mail:sy@jssylt.com


江苏森宇

 
CLQ型磁过滤器(0.1MPa)
一、使用条件
  CLQ型磁过滤器适用于稀油润滑系统,它安装在稀油站回油管的末端,稀油润滑系统的回油经过磁过滤器流进油箱,它能滤出其它过滤器无法滤出的细小磁性杂质。
经过磁过滤器的油流速度推荐为0.23~0.59m/s。
NR-93 磁串为磁过滤器的磁芯。
二、技术参数
型号
公称压力MPa
公称通径DN(mm)
公称流量L/min
重量kg
CLQ-25
0.1
25
10
10
CLQ-50
50
63
29
CLQ-80
80
125
57
CLQ-125
125
250
77
CLQ-150
150
400
105
CLQ-200
200
630
177
CLQ-250
250
1000
248
CLQ-300
300
1600
417
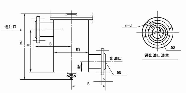
三、外形尺寸
型号
DN
D
D1
D2
D3
H≈
H1
H2
B
d
n
b
CLQ-25
25
115
85
65
150
405
250
50
140
14
4
18
CLQ-50
50
160
125
100
190
558
360
65
180
18
4
18
CLQ-80
80
195
160
135
290
605
355
80
230
18
4
20
CLQ-125
125
245
210
185
330
665
390
105
265
18
8
24
CLQ-150
150
280
240
210
400
700
410
120
300
23
8
24
CLQ-200
200
335
295
265
505
770
435
150
355
23
8
24
CLQ-250
250
390
350
320
600
900
525
180
425
23
12
26
CLQ-300
300
440
400
368
756
1045
635
230
500
23
12
28
  连接法兰按JB 81-59的规定(PN=1MPa)
四、标记示例
  公称通径为50mm 的磁过滤器
CLQ-50  过滤器