产品分类

联系我们

江苏森宇流体科技有限公司 

地址:江苏省启东市汇龙镇台角村(杨沙路27号)
电话:0513-83821332
传真:0513-83821332
邮编:226200 

http://www.jssylt.com 
E-mail:sy@jssylt.com


江苏森宇

 
分 配 器 罩
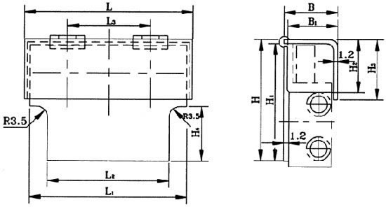
一、DW型分配器罩  
 
代号(订货号)
适用分配器
L
B
H
L1
L2
L3
B1
H1
H2
H3
H4
重量(kg)
ZY626.1.00
DW-22
48
45
75
44
15
-
43
72
32
39
28
0.092
ZY626.2.00
DW-24
57
53
32
-
0.105
ZY626.3.00
DW-26
74
70
49
-
0.133
ZY626.4.00
DW-28
91
87
66
45
0.163
ZY626.5.00
DW-32.42.52
48
59
121
44
21
-
52
118
63
70
37
0.172
ZY626.6.00
DW-34.44.54
80
76
59
40
0.252
ZY626.7.00
DW-36.46.56
112
108
85
55
0.326
ZY626.8.00
DW-38.48.58
144
140
117
70
0.401
标记示例:分配器罩DW-22 ZY626.1.00
 
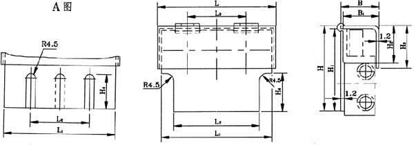
二、DV型分配器罩
注:ZY627.2.00和ZY627.3.00的分配器罩其主视图上的结构有所不同,见A图所示。
  ZY627.2.00只有一个槽,见A图中虚线所示。
代 号 (订货号) 适用分配器 L B H L1 L2 L3 B1 H1 H2 H3 H4 重量(kg)
ZY627.1.00 DV-31 48 43.5 103 44 15 - 41.5 100 45 48 43 0.11
ZY627.2.00 DV-32 77 73 - - 0.175
ZY627.3.00 DV-33 106 102 29 50 0.228
ZY627.4.00 DV-34 135 131 58 75 0.281
ZY627.5.00 DV-41 54 45.5 121 50 21 - 43.5 118 51 54 50 0.142
ZY627.6.00 DV-42 85 81 52 40 0.212
ZY627.7.00 DV-43 116 112 83 60 0.275
ZY627.8.00 DV-44 147 143 112 75 0.338
ZY627.9.00 DV-51 57 50.5 136 53 34 - 48.5 133 54 62 55 0.174
ZY627.11.00 DV-52 94 90 61 45 0.265
ZY627.12.00 DV-53 131 127 98 60 0.35
ZY627.13.00 DV-54 168 164 135 90 0.436
ZY627.14.00 DV-61 86 62.5 147 82 33 - 60.5 144 64 67 58 0.23
ZY627.15.00 DV-62 112 108 79 55 0.354